Úchyt panelu krajní černý, pro panel 35 mm
Kód: PNT6355095Související produkty
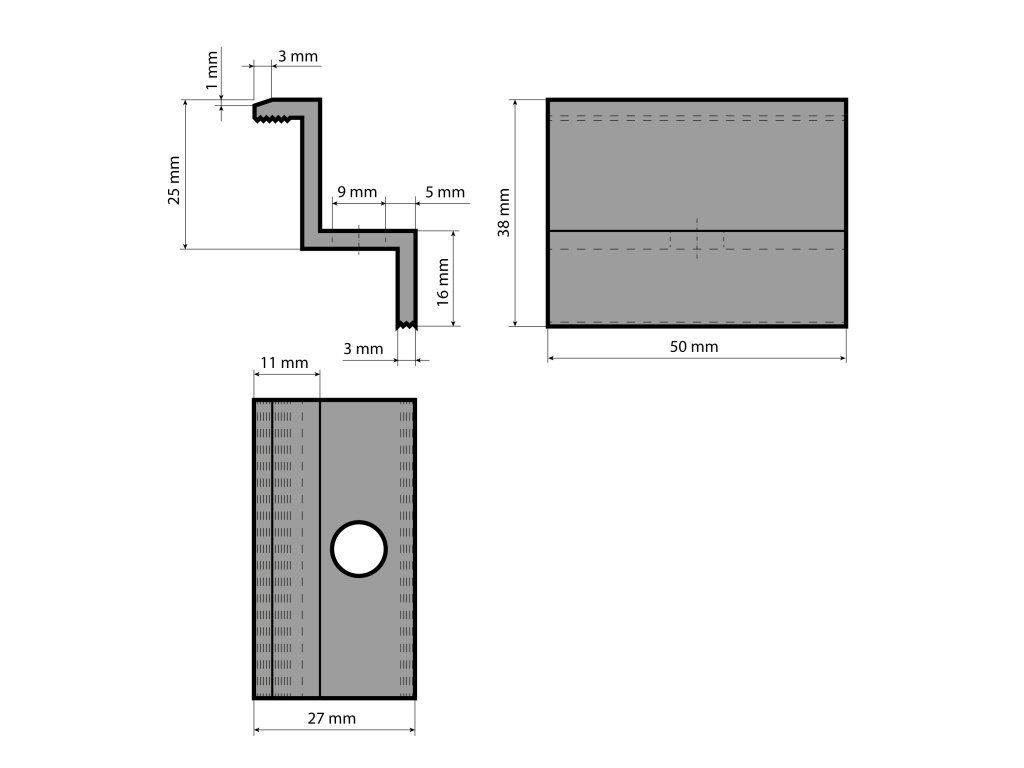
Detailní popis produktu
Úchyt je důležitým montážním prvkem pro instalaci solárních panelů a používá se k upevnění panelu k hliníkovému profilu. Je z odolného eloxovaného hliníku č. 6063 o rozměrech 3 x 4 x 5 cm s otvorem M8.
Hlavní přednosti
- Ideální při instalaci fotovoltaiky
- Materiál z odolného hliníku
Specifikace
- Značka: G21
- Určení: úchyt panelu
Parametry
- Barva: černá
- Materiál: eloxovaný hliník 6063
- Otvor pro šroub: M8
- Rozměry (š x v x d) : 3 x 4 x 5 cm
Obsah balení
- 150x krajní úchyt panelu G21
Kód produktu: PNT6355095
Part no.: UPG21KC2150
EAN: 8595627424572
Doplňkové parametry
| Kategorie: | Konstrukce a upevňovací materiál |
|---|---|
| EAN: | 8595627424572 |
| Dodavatel: | PENTA CZ s.r.o |
