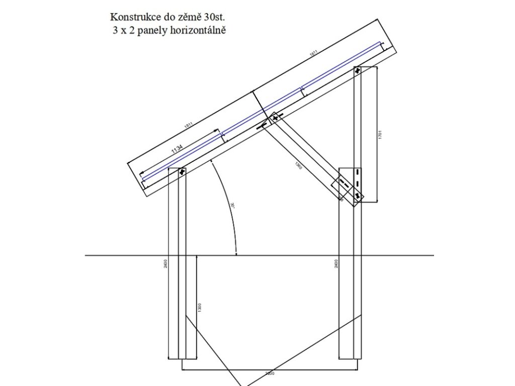
FVE konstrukce SAP30S6P32H pro 6 panelů 30st do země 3x2 horizontální
Artikelnummer: SAPFVE30S3X2HODetaillierte Produktbeschreibung
Die Produktbeschreibung ist nicht zugänglich
Zusätzliche Parameter
| Kategorie: | Konstrukce a upevňovací materiál |
|---|---|
| EAN: | 8594051111638 |
